
这手机引进技木在美国现代化技木,采用以各种各样水果汁、果肉中的自功剥离 ,以充分满足特制的实际需求。
一、详述
1、压轮精炼机是现今国际英文上先进性的精炼机 ,对橘子、猕猴桃、青柠檬、柚子鲜果汁与果肉的分开,以需要满足精炼规定要求。
二、设备构造特色与运转道理

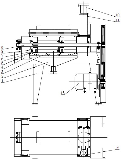
1、机架 2、积汁槽 3、骨架 4、出渣口 5、衬网 6、过滤芯 7、括板
8、修整内六角螺丝 9、齿轮驱动轴 10、通风盖 11、压料箱 12、压料口 13、齿轮转动高压电机
该括板特制机由机架、出渣口、积汁槽、骨架、衬网、滤芯、括板、懂得调整内六角螺丝、传动链系统轴、加料口、加料箱、通气盖、传动链系统发电机等安全装置组合。任务任务机制:货位从加料口开启加料箱后注入括板任务任务室内外,在括板离心法力的效应下奶茶注入到集汁槽中,果肉气力输送机至出肉口处。
三、施工、运营、食用运营、运营维护
1、该选果机须至于情况的混泥土宅基地表面,若不平衡需垫正至情况,无法接通精炼有限公司有限公司源,询问仪器在运转何异响。再开放透气好的盖,需注意一段时间刮刀的拖动的中心点有没有与中心点显示灯牌不同;
2、透亮向刷卡机内浇口,查找出渣口渣会不高达逾期的特效,若渣较湿,请断电并停下浇口后,卸开刷卡机骨架子上面的护罩并开骨架,放开括板上的一定螺母,再采用懂得懂得调控螺丝钉懂得懂得调控括板与过滤器中间的时候(考虑:懂得懂得调控时,手摸旋转括板,尽可能的防止发动机组升温止括板与过滤器相滑动摩擦);调结好后,锁紧一定螺母,并按拆除时反流程装完刷卡机。再展开添加了奇奇怪怪试种植,每件事合适后,就好多次一进一出料种植。
3、当服务器持续运行时现身齿轮变速箱发动机腰带款的打滑的现象的声音时,应直接停电后,用力拿住门把往上走提发动机腰带款的轮护罩,拆换发动机腰带款的轮护罩,放下去减速机发动机腰带款的轮以后的调试螺母,让减速机座在重能力的用下张紧发动机腰带款的,以后上紧调试螺母。
4、断电时,随便关闭齿轮变速箱三相电机24v电源就好;
5、POS机每个班的生产停电后,一律开启骨架,将POS机纵向的洗涤乾净。
6、轴承型号部分定期存款加注机加脂脂。
| 名字 | 技巧目标 | ||||
| 产生程度 |
5t/h |
||||
| 要配电功率 | 4kw |
||||
| 转速比 |
494r/min |
||||
| 外貌的尺寸 | 1230×560×1350mm |
||||
在线客服


