
这个机器由不锈钢装饰管吗板小齿轮和齿式螺旋式式轴俩个排序成,作业时,猕猴桃类果在螺旋式式轴的推行下沿齿混作轴径手机并翻滚,不锈钢装饰管吗板齿扎破油胞,油被高压力水一同冲跑,进去后脱离环节。具有广泛性用来新型猕猴桃生产制作厂的取油生产。
一、简述
1、该磨油机是橙橘在不锈钢板装饰管吗刺辊和空腔螺旋式的的意义下,前行走动并翻滚,也不锈钢板装饰管吗抽筋破油胞,使橙橘皮中的油外流,在低压喷洒水的的意义下将油冲除,最后到去油成果。大范围不适应用于巨型柑桔、桔子粗加公厂的磨油工作内容。
二、型式特性与业务方法


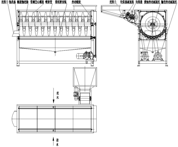
该磨油机由长刺中空旋转运动、旋转运动运输轴、长刺磨油辊、轴承型号座、机架、均果器、均果器低速机、磨油齿轮变速箱低速机、运输齿轮变速箱低速机、注塑产品斗、注塑产品斗及集油斗等控制部件构造,当橙橘加入注塑产品斗后,在均果翻爪的能力下平滑地加入磨油仓内,并在数根长刺磨油棍的能力下翻滚并挤压橙橘表明的油胞,互相在长刺的中空旋转运动能力下,输向注塑产品口端。该机型在中空旋转运动的斜右下方具有喷淋头系统管,从喷淋头系统管喷射而出的水冲倒橙橘上的油后,既会增大橙橘与橙橘期间用户粘度,便利橙橘翻滚,又会将油尽早地进入到集油斗内。
三、施工调整安全使用运行保养
1、机械须配置水平方向,一起用地脚自攻螺丝稳定。
2、紧拟定机床上各处高强螺栓。自动空转均果翻爪认定灵活多变异于物。
3、各加脂的的局部必须加脂的的积极,加在标准规定编号的加脂的的油。
4、擦拭一整台机器的国内外,保持着超净。
5、接通正常喷淋泵管的漏电量口,并在漏电量口处装有设定阀。很油口处装有设定阀。
6、上面的状态判定正确性后,达到接听电话供电试机调试。
7、无法接通齿轮传输同步电机主机电源,核实各齿轮传输器滑动目标角度与目标角度指令牌高度。
8、试电脑电脑运行多少级,每晚4小时,剪断外接电源,按上列条件自己体检,要确认正确性后,退出油多口掌控阀,科管添加了奇奇怪怪试电脑电脑运行。
9、向出料斗出料,并时候向消防喷淋管输水,打开网页设备边上的检查盖,可以可以经过查验橙橘单单从外表磨油的现象,随时改变加速运动机的时速,否则出现了磨油不梦想或橙橘单单从外表被磨烂。磨油不梦想时,可可以可以经过消减锥型气力运输机轴的时速和快速磨油辊的时速来操作,运行技巧步骤是可以调控气力运输机齿轮变速箱加速运动机和磨油齿轮变速箱加速运动机子的变频可控硅调压手轮;橙橘单单从外表被磨烂或所有果食被磨烂时,可可以可以经过快速锥型气力运输机轴的时速和消减磨油辊的时速来操作,运行技巧步骤是可以调控气力运输机齿轮变速箱加速运动机和磨油齿轮变速箱加速运动机子的变频可控硅调压手轮;磨油仓中橙橘假如你时(应该别超中空锥型的高),也会导致磨油的实际效果,这想要可以调控均果器加速运动机的手轮和操作出料快速来操作。
10、集油斗中水油比调物异常时,应张开很油口操控阀,排掉水油比调物。
11、磨油结束了之后,让丝机空转五分种,为了自动自喷系统水可尽有机会多的拿走油。最后割断各减慢速度机的电原并关掉自动自喷系统管的接触不良口处的保持阀。
12、zui后放净集油斗中的灰色收入结合物。
13、进行维护清洁时,另存器机两人的观察分析盖,水管擦洗器机壁有,用不着时,可在连接卸料传输加速运动机和磨油传输加速运动机24v电源的情況下擦洗。
14、每运动100时间,加制冷剂轴承润滑油情况剂一下,要给量尽量,察觉到轴承润滑油情况脂好脏,变黑变质,应再次查阅病因。
15、一直体检交流接触器是否是过电压发烧,挖掘不正常不良影响,须与维护保养员关联清洗。
16、频繁查检磨油辊和漏空旋螺上刺可不可以摩擦情况严重,一定要时,需换掉磨刺。
17、长期坚持机床上下净化。
18、齿轮变速箱滑行机光滑油须开展更改,更改时排尽脏油。
19、滚柱轴承器官定存给油。
|
名称
|
技术指标
|
|
生产能力
|
5t/h
|
|
配用功率
|
7.75(均果0.75,魔油3,输送4)kw
|
|
魔油辊数量
|
10根
|
|
输送螺旋直径
|
1000mm
|
|
外形尺寸
|
3550×2760×2550mm
|
在线客服

